Share:
Description
A two bedroom mid-terraced house situated in this cul-de-sac and within easy reach of New Barnet Mainline Station. The property benefits from having a fitted kitchen and bathroom/WC. Council Tax Band D.
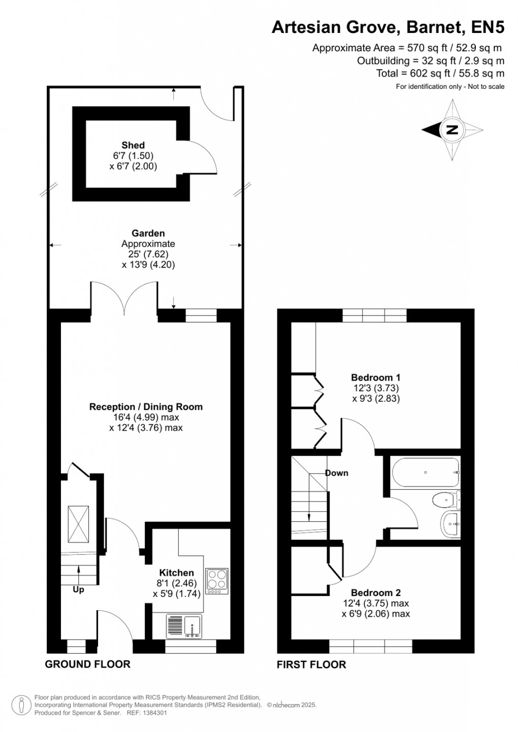
A two bedroom mid terraced house situated in a popular development in New Barnet, situated in this cul-de-sac position within easy reach of local schools, shops and New Barnet Mainline station. The accommodation comprises lounge/dining area, fitted kitchen, and recently replaced family bathroom/WC. The property benefits from having double glazing and gas central heating, and externally there is a 25' x 13'9 rear garden and off street parking to the front. The property is offered for sale in excellent condition and internal viewing is highly recommended. EPC Rating C. Council Tax Band D. https://w3w.co/dined.news.lockFloorplan
EPC
To discuss this property call us:
Market your property
with Spencer and Sener
Book a market appraisal for your property today.
